Арендный бизнес Жилое здание "Панфилова, 12"

Арендный бизнес Жилое здание Арендный бизнес Жилое здание Арендный бизнес Жилое здание
Арендный бизнес Жилое здание Арендный бизнес Жилое здание Арендный бизнес Жилое здание
Москва, улица Панфилова, 12
Позвоните по телефону +7 495 230-28-26, либо оставьте заявку на просмотр прямо сейчас и узнайте условия специального предложения по объекту.
загрузка карты...
Кириченко Константин Юрьевич

Объект ведет консультант:

Кириченко Константин Юрьевич

Общие
ID 61667
Тип сделки Продажа
Площадь 358.70
Площадь всего 10699.00
Тип объекта Жилое здание
Этаж -1 - 1
Всего этажей в здании 8
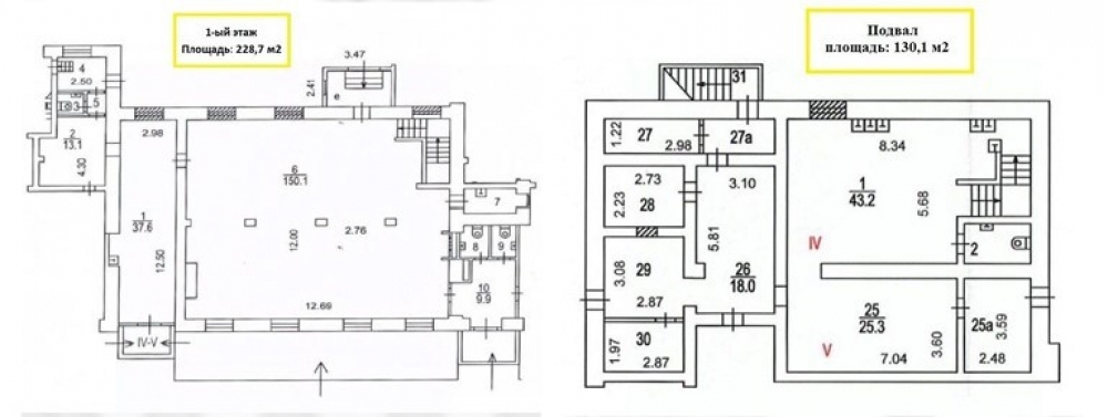
Метраж по этажам
Этаж: 1 - 228.7 м2
Этаж: -1 - 130.1 м2
Информация об объекте
Состояние объекта рабочее
Состояние блока отделка арендатора
Планировка Смешанная
Перекрытия Железобетонные
Нюансы Отдельный вход
Торговая недвижимость
Линия домов 1 линия
Возможности Витрины,Место для рекламы,Проходное место,Проездное место
Электр. мощность (кВт) 100
Коммерческие условия
За все 79 000 000 ₽
За м 2 220 240 ₽
Тип собственника Юридическое лицо
Арендный бизнес
Окупаемость 8 Лет 10 мес.
По первому месяцу 8 Лет 10 мес.
Доходность 11.32 %
По первому месяцу 11.32 %
Ставка аренды 750 000 ₽ в мес
Арендная ставка за кв\м в год 25 091 ₽
Арендатор Ресторан Буффало, Чебуречная

Описание объекта
Продаётся двухуровневое помещение свободного назначения, первая линия, витринные окна. Можно рассмотреть под ГАБ (действующий, платёжеспособный арендатор).
Шаговая доступность от метро и МЦК, к дому выходит переход на БЦ Диапазон.
Исторический район с перспективой роста - строится студенческий  городок с новыми общежитиями МАИ и РОСБИОТЕХ

Наша оценка
Локация
Цена
Техническое оснащение
Состояние
Метраж
Общая оценка 4.6

Нужна консультация по подбору арендного бизнеса?

Наши специалисты подберут для вас самые выгодные варианты для долгосрочного инвестирования,
помогут в сопровождении и сделки, проверят все юридические вопросы касаемо приобретения недвижимости.

* Нажимая на кнопку «Отправить», Вы даете согласие на обработку персональных данных в соответствии с Политикой конфиденциальности

Похожие объекты

Доходность 9.38 %

Саларьево (25 мин. 🚗)
Москва, Новомосковский административный округ, район Внуково, улица Медовая Долина, 2
ЖК «Баркли Медовая долина»
Тип: Арендный бизнес, Торговое помещение
Площадь: 372.00 м2
Мощность:74 кВт
Арендатор: Пятёрочка
Месячный платеж: 800 000
130 000 000 за все
349 462 за м2
Позвонить Подробнее

Доходность 12.50 %

Бунинская аллея (26 мин. 🚗)
Москва, Новомосковский административный округ, район Щербинка, квартал № 103, жилой комплекс Подольские Кварталы, к2
ЖК "Подольские Кварталы" к2
Тип: Арендный бизнес, Торговое помещение
Площадь: 359.00 м2
Мощность:10 кВт
Арендатор: Пятёрочка
Месячный платеж: 1 368 000
156 000 000 за все
434 540 за м2
Позвонить Подробнее

Доходность 6.74 %

Ботанический сад (8 мин. 🚶)
Москва, Берёзовая аллея, 19к2
ЖК "Легендарный квартал"
Тип: Арендный бизнес, Торговое помещение
Площадь: 380.00 м2
Мощность:76 кВт
Арендатор: Самокат
Месячный платеж: 523 270
133 000 000 за все
350 000 за м2
Позвонить Подробнее
Домодедовская (15 мин. 🚗)
Московская область, Ленинский городской округ, посёлок Развилка, жилой комплекс Римский
ЖК "Римский"
Тип: Арендный бизнес, Торговое помещение
Площадь: 328.00 м2
Мощность:63 кВт
Арендатор: Аптека, супермаркет
Месячный платеж: 0
120 000 000 за все
365 854 за м2
Позвонить Подробнее

Доходность 12.12 %

Новопеределкино (5 мин. 🚶)
Москва, Чоботовская улица, 2к2
ЖК "FoRest" (Форест)
Тип: Арендный бизнес, Торговое помещение
Площадь: 323.00 м2
Мощность:75 кВт
Арендатор: Магнит
Месячный платеж: 1 450 000
165 000 000 за все
510 836 за м2
Позвонить Подробнее

Доходность 16.67 %

Бабушкинская (18 мин. 🚗)
Москва, Ярославское шоссе, 136
Жилой дом "Ярославское ш. 136"
Тип: Арендный бизнес, Торговое помещение
Площадь: 372.00 м2
Мощность:75 кВт
Арендатор: Магнит
Месячный платеж: 950 000
75 000 000 за все
201 613 за м2
Позвонить Подробнее

Доходность 8.11 %

Тульская (17 мин. 🚗)
Москва, Новоданиловская набережная, 6к1
Бизнес-центр «Данилов Плаза»
Тип: Арендный бизнес, Торговое помещение
Площадь: 353.50 м2
Мощность:130 кВт
Арендатор: Пятёрочка
Месячный платеж: 984 000
183 000 000 за все
517 680 за м2
Позвонить Подробнее

Доходность 7.55 %

Волоколамская (7 мин. 🚗)
Москва, Волоколамское шоссе, 142с3
ОСЗ Волоколамское шоссе, 142с3
Тип: Арендный бизнес, Торговое помещение
Площадь: 360.00 м2
Мощность:150 кВт
Арендатор: -
Месячный платеж: 600 000
95 000 000 за все
263 889 за м2
Позвонить Подробнее

Доходность 10.08 %

Петровско-Разумовская (13 мин. 🚗)
Москва, Дмитровское шоссе, 64к1
Жилое здание "Дмитровское шоссе д. 64к1"
Тип: Арендный бизнес, Торговое помещение
Площадь: 357.70 м2
Арендатор: ВТБ
Месячный платеж: 2 145 619
255 000 000 за все
712 888 за м2
Позвонить Подробнее

Доходность 11.88 %

Котельники (15 мин. 🚗)
Московская область, Котельники, Новорязанское шоссе, 6с4
ЖК "Дюна"
Тип: Арендный бизнес, Торговое помещение
Площадь: 386.16 м2
Арендатор: Магнит
Месячный платеж: 1 544 640
155 000 000 за все
401 388 за м2
Позвонить Подробнее

Доходность 10.00 %

Петровско-Разумовская (25 мин. 🚗)
Москва, Малая Ботаническая улица, 3
Малая Ботаническая, 3
Тип: Арендный бизнес, Торговое помещение
Площадь: 349.60 м2
Мощность:100 кВт
Арендатор: Магнолия
Месячный платеж: 777 000
93 000 000 за все
266 018 за м2
Позвонить Подробнее

Доходность 17.91 %

Озёрная (15 мин. 🚶)
Москва, Большая Очаковская улица, 23/8
Жилой дом "Большая Очаковская 23/8"
Тип: Арендный бизнес, Торговое помещение
Площадь: 390.00 м2
Арендатор: кладовкин
Месячный платеж: 500 000
46 999 000 за все
120 510 за м2
Позвонить Подробнее

Доходность 10.62 %

Аэропорт (5 мин. 🚶)
Москва, Ленинградский проспект, 47
Административное здание AIR Space
Тип: Арендный бизнес, Торговое помещение
Площадь: 163.10 м2
Арендатор: Винный магазин "Винлаб"
Месячный платеж: 525 000
73 000 000 за все
447 578 за м2
Позвонить Подробнее

Доходность 7.14 %

Полянка (5 мин. 🚶)
Москва, улица Большая Полянка, 9
ЖК «Cloud Nine»
Тип: Арендный бизнес, Торговое помещение
Площадь: 72.80 м2
Мощность:15 кВт
Арендатор: Красное и белое
Месячный платеж: 360 000
84 000 000 за все
1 153 846 за м2
Позвонить Подробнее

Доходность 8.76 %

Цветной бульвар (5 мин. 🚶)
Закрытая продажа #57569
Тип: Арендный бизнес, Торговое помещение
Площадь: 88.00 м2
Арендатор: Ювелирный 10.Gran
Месячный платеж: 330 000
78 000 000 за все
886 364 за м2
Позвонить Подробнее

Доходность 12.24 %

Мякинино (30 мин. 🚶)
Московская область, Красногорск, Красногорский бульвар, 4с1
ТЦ "Терабит"
Тип: Арендный бизнес, Индустриальная недвижимость
Площадь: 683.00 м2
Арендатор: Озон Фреш
Месячный платеж: 700 000
81 960 000 за все
120 000 за м2
Позвонить Подробнее

Доходность 16.67 %

Бабушкинская (18 мин. 🚗)
Москва, Ярославское шоссе, 136
Жилой дом "Ярославское ш. 136"
Тип: Арендный бизнес, Торговое помещение
Площадь: 372.00 м2
Мощность:75 кВт
Арендатор: Магнит
Месячный платеж: 950 000
75 000 000 за все
201 613 за м2
Позвонить Подробнее

Доходность 9.84 %

Каширская (5 мин. 🚶)
Москва, Каширское шоссе, 24с20
ОСЗ "Каширское ш. 24с28"
Тип: Арендный бизнес, Торговое помещение
Площадь: 268.50 м2
Мощность:200 кВт
Арендатор: Автосалон
Месячный платеж: 700 000
85 000 000 за все
316 574 за м2
Позвонить Подробнее

Доходность 8.51 %

ЗИЛ (15 мин. 🚶)
Москва, набережная Марка Шагала, 11к3
ЖК Шагал
Тип: Арендный бизнес, Торговое помещение
Площадь: 120.20 м2
Арендатор: Еби да еби
Месячный платеж: 600 000
84 140 000 за все
700 000 за м2
Позвонить Подробнее

Доходность 12.37 %

Селигерская (13 мин. 🚶)
Москва, Коровинское шоссе, 12
Жилое здание "Коровинское шоссе, 12"
Тип: Арендный бизнес, Торговое помещение
Площадь: 213.10 м2
Арендатор: Самокат
Месячный платеж: 650 000
78 000 000 за все
366 025 за м2
Позвонить Подробнее

Доходность 10.00 %

Строгино (20 мин. 🚗)
Московская область, Красногорск, улица Липовой Рощи, 5
ЖК "Спутник"
Тип: Арендный бизнес, Торговое помещение
Площадь: 84.60 м2
Мощность:32 кВт
Арендатор: SURF COFFEE
Месячный платеж: 524 520
78 700 000 за все
930 260 за м2
Позвонить Подробнее

Доходность 10.81 %

Речной вокзал (8 мин. 🚶)
Москва, Фестивальная улица, 29
ЖК "Фестиваль Парк"
Тип: Арендный бизнес, Торговое помещение
Площадь: 176.20 м2
Мощность:19 кВт
Арендатор: Барбершоп POINT
Месячный платеж: 570 000
85 000 000 за все
482 406 за м2
Позвонить Подробнее

Доходность 10.08 %

Аннино (40 мин. 🚗)
Московская область, Ленинский городской округ, посёлок Битца, жилой комплекс Южная Битца, Ботаническая улица, 12
ЖК "Южная Битца"
Тип: Арендный бизнес, Торговое помещение
Площадь: 260.00 м2
Мощность:50 кВт
Арендатор: Магнит
Месячный платеж: 710 000
84 000 000 за все
323 077 за м2
Позвонить Подробнее

Доходность 11.88 %

(30 мин. 🚗)
Москва, Новомосковский административный округ, Филимонковский район, жилой комплекс Эдельвейс, 93
ЖК "Эдельвейс"
Тип: Арендный бизнес, Торговое помещение
Площадь: 475.30 м2
Арендатор: Пятёрочка, ПВЗ
Месячный платеж: 845 000
85 000 000 за все
178 834 за м2
Позвонить Подробнее

Доходность 12.50 %

Сокол Сокольники Соколиная Гора (17 мин. 🚶)
Москва, Волоколамское шоссе, 13
Жилое здание "Волоколамское шоссе, 13"
Тип: Арендный бизнес, Торговое помещение
Площадь: 37.70 м2
Мощность:15 кВт
Арендатор: сеть кофеен ДАБЛБИ
Месячный платеж: 255 000
29 070 000 за все
771 088 за м2
Позвонить Подробнее

Доходность 12.00 %

Сокол Сокольники Соколиная Гора (15 мин. 🚶)
Москва, Часовая улица, 11/3
ОСЗ "Часовая 11/3"
Тип: Арендный бизнес, Торговое помещение
Площадь: 537.40 м2
Арендатор: Яндекс.Лавка
Месячный платеж: 803 550
96 500 000 за все
179 568 за м2
Позвонить Подробнее

Доходность 9.52 %

Сокол Сокольники Соколиная Гора (6 мин. 🚶)
Москва, Ленинградский проспект, 77к2
Жилое здание «Ленинградский 77 к2»
Тип: Арендный бизнес, Торговое помещение
Площадь: 1150.50 м2
Арендатор: ВТБ
Месячный платеж: 6 200 000
778 000 000 за все
676 228 за м2
Позвонить Подробнее

Доходность 12.12 %

Соколиная Гора (17 мин. 🚶)
Москва, улица Бориса Жигулёнкова, 7
ЖК "Бориса Жигуленкова"
Тип: Арендный бизнес, Торговое помещение
Площадь: 665.40 м2
Мощность:110 кВт
Арендатор: Отделение реабилитации «Молодильное Яблоко»
Месячный платеж: 1 000 000
128 000 000 за все
192 365 за м2
Позвонить Подробнее

Доходность 9.09 %

Сокольники (5 мин. 🚶)
Москва, Русаковская улица, 25с1
Административное здание «Русаковская 25 с1»
Тип: Арендный бизнес, Торговое помещение
Площадь: 15.90 м2
Арендатор: ТАБАК СИДР
Месячный платеж: 190 000
25 080 000 за все
1 577 358 за м2
Позвонить Подробнее

Доходность 9.02 %

Сокольники (5 мин. 🚶)
Москва, Русаковская улица, 25с1
Административное здание «Русаковская 25 с1»
Тип: Арендный бизнес, Торговое помещение
Площадь: 13.20 м2
Арендатор: Правда кофе
Месячный платеж: 175 232
23 131 000 за все
1 752 348 за м2
Позвонить Подробнее

Доходность 8.22 %

Сокольники (18 мин. 🚶)
Москва, улица Сокольнический Вал, 8
Жилой дом "Сокольнический Вал 8"
Тип: Арендный бизнес, Торговое помещение
Площадь: 881.60 м2
Арендатор: Множество разных
Месячный платеж: 1 200 000
175 000 000 за все
198 503 за м2
Позвонить Подробнее

Доходность 8.51 %

Сокольники (14 мин. 🚗)
Москва, Улица Короленко, 3А
Бизнес-центр «Короленко 3а»
Тип: Арендный бизнес, Офисы
Площадь: 3311.00 м2
Арендатор: Множество разных
Месячный платеж: 3 200 000
450 000 000 за все
135 911 за м2
Позвонить Подробнее

Доходность 11.76 %

Сокол Сокольники Соколиная Гора (15 мин. 🚶)
Москва, Часовая улица, 11/3
ОСЗ "Часовая 11/3"
Тип: Арендный бизнес, Торговое помещение
Площадь: 1220.00 м2
Арендатор: Ленинградский рынок м-н “ПЯТЁРОЧКА”, Яндекс.Лавка
Месячный платеж: 2 053 550
253 000 000 за все
207 377 за м2
Позвонить Подробнее