Арендный бизнес Жилое здание "Новинский бульвар д. 1/2"

Арендный бизнес Жилое здание Арендный бизнес Жилое здание Арендный бизнес Жилое здание Арендный бизнес Жилое здание
Арендный бизнес Жилое здание Арендный бизнес Жилое здание Арендный бизнес Жилое здание Арендный бизнес Жилое здание
Москва, Новинский бульвар, 1/2
Позвоните по телефону +7 495 230-28-26, либо оставьте заявку на просмотр прямо сейчас и узнайте условия специального предложения по объекту.
загрузка карты...
Общие
ID 46587
Тип сделки Продажа
Площадь 147.10
Площадь всего 6166.00
Тип объекта Жилое здание
Этаж 1
Всего этажей в здании 5
Метраж по этажам
Информация об объекте
Состояние объекта рабочее
Состояние блока отделка арендатора
Планировка Смешанная
Нюансы Отдельный вход
Торговая недвижимость
Линия домов 1 линия
Возможности Витрины,Место для рекламы,Проходное место,Проездное место
Электр. мощность (кВт) 25
Коммерческие условия
За все 119 000 000 ₽
За м 2 808 973 ₽
Арендный бизнес
Окупаемость 11 Лет 10 мес.
По первому месяцу 11 Лет 10 мес.
Доходность 8.45 %
По первому месяцу 8.45 %
Ставка аренды 840 000 ₽ в мес
Арендная ставка за кв\м в год 68 525 ₽
Арендатор Мон Пони салон красоты

Описание объекта
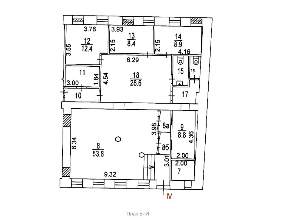
Предлагается в продажу готовый арендный бизнес на 1-м этаже жилого дома, по адресу: Новинский бульвар д. 1/2. Площадь 147,10 м2, открытая планировка рабочего зала, зона ожидания, зона ресепшн, серверная, склад, кабинет директора, 3 кабинета, кухня, санузлы.

Арендатор: Мон Пони - один из редких объектов Москвы, где создано идеальное пространство не только для салона красоты, но и для ведения любого бизнеса.

Нужна консультация по подбору арендного бизнеса?

Наши специалисты подберут для вас самые выгодные варианты для долгосрочного инвестирования,
помогут в сопровождении и сделки, проверят все юридические вопросы касаемо приобретения недвижимости.

* Нажимая на кнопку «Отправить», Вы даете согласие на обработку персональных данных в соответствии с Политикой конфиденциальности

Похожие объекты

Доходность 8.96 %

Маяковская (2 мин. 🚶)
Москва, 3-я Тверская-Ямская улица, 12с1
Жилое здание "3-я Тверская-Ямская улица, 12с1"
Тип: Арендный бизнес, Торговое помещение
Площадь: 159.20 м2
Мощность:40 кВт
Арендатор: МИЛТИ сеть магазинов готовой еды, Студия звукозаписи
Месячный платеж: 360 000
47 900 000 за все
300 879 за м2
Позвонить Подробнее

Доходность 20.00 %

Багратионовская (14 мин. 🚶)
Москва, 2-я Филёвская улица, 8к1
Жилое здание "2-я Филёвская улица, 8к1"
Тип: Арендный бизнес, Торговое помещение
Площадь: 160.00 м2
Арендатор: СПА с хаммамом и финской баней
Месячный платеж: 500 000
30 000 000 за все
187 500 за м2
Позвонить Подробнее

Доходность 10.81 %

Домодедовская (15 мин. 🚗)
Московская область, Ленинский городской округ, посёлок Развилка, жилой комплекс Римский
ЖК "Римский"
Тип: Арендный бизнес, Торговое помещение
Площадь: 144.40 м2
Арендатор: ВинЛаб, Табак Less
Месячный платеж: 330 000
41 500 000 за все
287 396 за м2
Позвонить Подробнее

Доходность 9.92 %

Прокшино (10 мин. 🚶)
Москва, Новомосковский административный округ, район Коммунарка, Прокшинский проспект, 9
Жилой квартал "Прокшино 5.2.5"
Тип: Арендный бизнес, Торговое помещение
Площадь: 156.20 м2
Арендатор: ВинЛаб, Табак
Месячный платеж: 505 000
69 800 000 за все
446 863 за м2
Позвонить Подробнее

Доходность 9.92 %

Сходненская (2 мин. 🚶)
Москва, улица Героев Панфиловцев, 1к3
Жилое здание "улица Героев Панфиловцев, 1к3"
Тип: Арендный бизнес, Торговое помещение
Площадь: 149.30 м2
Мощность:15 кВт
Арендатор: Агентство недвижимости Миэль
Месячный платеж: 373 250
45 000 000 за все
301 407 за м2
Позвонить Подробнее

Доходность 11.65 %

Новые Черёмушки (7 мин. 🚶)
Москва, улица Намёткина, 3
Административное здание "Намёткина, 3"
Тип: Арендный бизнес, Торговое помещение
Площадь: 136.30 м2
Арендатор: Магазин 3D принтеров
Месячный платеж: 165 500
17 000 000 за все
124 725 за м2
Позвонить Подробнее

Доходность 11.21 %

Бауманская (9 мин. 🚶)
Москва, Бауманская улица, 58/25с1
Особняк "Бауманская улица, 58/25с1"
Тип: Арендный бизнес, Торговое помещение
Площадь: 136.00 м2
Арендатор: Улыбка радуги
Месячный платеж: 650 000
85 000 000 за все
625 000 за м2
Позвонить Подробнее

Доходность 13.04 %

Ховрино (15 мин. 🚗)
Москва, Лобненская улица, 14
ТЦ "Зодиак"
Тип: Арендный бизнес, Торговое помещение
Площадь: 135.40 м2
Мощность:12 кВт
Арендатор: Винный магазин "Винлаб"
Месячный платеж: 444 247
47 880 000 за все
353 619 за м2
Позвонить Подробнее

Доходность 14.46 %

Чистые пруды (5 мин. 🚶)
Москва, Большой Харитоньевский переулок, 9
Жилое здание " Большой Харитоньевский переулок, 9"
Тип: Арендный бизнес, Торговое помещение
Площадь: 148.00 м2
Арендатор: Интернет-магазин косметики, Студия дизайна
Месячный платеж: 240 000
24 500 000 за все
165 541 за м2
Позвонить Подробнее

Доходность 10.34 %

Текстильщики (9 мин. 🚗)
Москва, улица Юных Ленинцев, 37
Жилое здание "улица Юных Ленинцев, 37"
Тип: Арендный бизнес, Торговое помещение
Площадь: 138.60 м2
Мощность:20 кВт
Арендатор: ВинЛаб
Месячный платеж: 280 000
37 000 000 за все
266 955 за м2
Позвонить Подробнее

Доходность 8.70 %

Селигерская (10 мин. 🚗)
Москва, Ангарская улица, 67к3
Жилой дом " Ангарская ул, 67к3"
Тип: Арендный бизнес, Торговое помещение
Площадь: 156.10 м2
Мощность:30 кВт
Арендатор: Салон красоты
Месячный платеж: 233 000
32 000 000 за все
204 997 за м2
Позвонить Подробнее

Доходность 11.76 %

Войковская (16 мин. 🚗)
Москва, Улица Космонавта Волкова, 6А
Офисное здание «Космонавта Волкова 6а»
Тип: Арендный бизнес, Торговое помещение
Площадь: 137.00 м2
Мощность:25 кВт
Арендатор: Яндекс.Лавка
Месячный платеж: 313 032
41 320 257 за все
301 608 за м2
Позвонить Подробнее

Доходность 12.24 %

Беляево (3 мин. 🚶)
Москва, Профсоюзная улица, 104
Жилое здание "Профсоюзная улица, 104"
Тип: Арендный бизнес, Торговое помещение
Площадь: 285.00 м2
Мощность:50 кВт
Арендатор: центр укрепления семьи, Салон красоты
Месячный платеж: 780 000
110 000 000 за все
385 965 за м2
Позвонить Подробнее

Доходность 9.38 %

Новокузнецкая (3 мин. 🚶)
Москва, Климентовский переулок, 6
Жилое здание «Климентовский 6»
Тип: Арендный бизнес, Торговое помещение
Площадь: 113.60 м2
Мощность:55 кВт
Арендатор: ВинЛаб
Месячный платеж: 742 630
109 900 000 за все
967 430 за м2
Позвонить Подробнее

Доходность 10.62 %

Котельники
Московская область, городской округ Люберцы, посёлок городского типа Красково, улица Карла Маркса, 63
ЖК "Красково-Олимпийский"
Тип: Арендный бизнес, Торговое помещение
Площадь: 1323.20 м2
Мощность:150 кВт
Арендатор: Дикси, Кофейня Аэростат, Пивной магазин
Месячный платеж: 1 160 000
130 000 000 за все
98 247 за м2
Позвонить Подробнее

Доходность 8.51 %

Фили (5 мин. 🚶)
Москва, Багратионовский проезд, 5Ак1
ЖК "ФИЛИ СИТИ"
Тип: Арендный бизнес, Торговое помещение
Площадь: 207.00 м2
Мощность:110 кВт
Арендатор: Стоматология
Месячный платеж: 700 000
130 000 000 за все
628 019 за м2
Позвонить Подробнее

Доходность 11.21 %

Строгино (48 мин. 🚗)
Московская область, муниципальный округ Истра, деревня Корсаково, 12А
ОСЗ "Истра, деревня Корсаково, 12А"
Тип: Арендный бизнес, Торговое помещение
Площадь: 1120.00 м2
Мощность:150 кВт
Арендатор: Магнит, Красное и белое, Вайлдберриз, Кафе Бакинская кухня, Сыр и колбасы, Табак, Бахча, Мясной домик, Суши Вок
Месячный платеж: 1 108 500
118 000 000 за все
105 357 за м2
Позвонить Подробнее

Доходность 9.38 %

Саларьево (25 мин. 🚗)
Москва, Новомосковский административный округ, район Внуково, улица Медовая Долина, 2
ЖК «Баркли Медовая долина»
Тип: Арендный бизнес, Торговое помещение
Площадь: 372.00 м2
Мощность:74 кВт
Арендатор: Пятёрочка
Месячный платеж: 800 000
130 000 000 за все
349 462 за м2
Позвонить Подробнее

Доходность 11.21 %


Московская область, Солнечногорск, Красная улица, 64
Жилое здание "Солнечногорск, Красная улица, 64"
Тип: Арендный бизнес, Торговое помещение
Площадь: 430.00 м2
Арендатор: Магнит
Месячный платеж: 850 000
110 000 000 за все
255 814 за м2
Позвонить Подробнее

Спец. предложение

Доходность 11.32 %

Мякинино (50 мин. 🚗)
Московская область, городской округ Красногорск, посёлок Ильинское-Усово, Заповедная улица, 20
ЖК "Ильинские Луга"
Тип: Арендный бизнес, Торговое помещение
Площадь: 308.00 м2
Арендатор: Дикси
Месячный платеж: 985 920
127 000 000 за все
412 338 за м2
Позвонить Подробнее

Доходность 18.18 %

Коломенская (6 мин. 🚶)
Москва, проспект Андропова, 37
Административное здание "проспект Андропова, 37"
Тип: Арендный бизнес, Торговое помещение
Площадь: 603.60 м2
Мощность:140 кВт
Арендатор: Ресторан Пхеньян, МТС
Месячный платеж: 1 585 500
130 000 000 за все
215 374 за м2
Позвонить Подробнее

Доходность 9.76 %

Бунинская аллея (53 мин. 🚗)
Московская область, Подольск, микрорайон Красная Горка, Садовая улица, 3к1
ЖК "Онегин"
Тип: Арендный бизнес, Торговое помещение
Площадь: 344.40 м2
Мощность:68 кВт
Арендатор: Магнит
Месячный платеж: 900 000
110 000 000 за все
319 396 за м2
Позвонить Подробнее

Доходность 9.09 %

Бауманская (9 мин. 🚶)
Москва, Бауманская улица, 58/25с1
Особняк "Бауманская улица, 58/25с1"
Тип: Арендный бизнес, Торговое помещение
Площадь: 188.70 м2
Арендатор: Кафе Культурный код
Месячный платеж: 838 000
110 000 000 за все
582 936 за м2
Позвонить Подробнее

Доходность 10.81 %

Тульская (17 мин. 🚗)
Москва, Новоданиловская набережная, 6к1
Бизнес-центр «Данилов Плаза»
Тип: Арендный бизнес, Торговое помещение
Площадь: 237.30 м2
Мощность:120 кВт
Арендатор: Ресторан ProLunch
Месячный платеж: 770 000
125 000 000 за все
526 759 за м2
Позвонить Подробнее

Доходность 8.70 %

Смоленская (Филевская) Смоленская (Арбатско-Покровская) (8 мин. 🚶)
Москва, Смоленская-Сенная площадь, 27с1
Жилое здание «Смоленская-Сенная 27 с1»
Тип: Арендный бизнес, Торговое помещение
Площадь: 237.50 м2
Арендатор: Альфа-Банк
Месячный платеж: 1 837 500
330 000 000 за все
1 389 474 за м2
Позвонить Подробнее

Доходность 12.00 %

Смоленская (Филевская) Смоленская (Арбатско-Покровская) (2 мин. 🚶)
Москва, Карманицкий переулок, 9
БЦ Арбат
Тип: Арендный бизнес, Торговое помещение
Площадь: 16.60 м2
Мощность:15 кВт
Арендатор: Пончиковая, Цветочный магазин
Месячный платеж: 280 000
28 000 000 за все
1 686 747 за м2
Позвонить Подробнее

Доходность 9.76 %

Смоленская (Филевская) Смоленская (Арбатско-Покровская) (10 мин. 🚶)
Москва, Малый Власьевский переулок, 14/23
Жилое здание "Малый Власьевский переулок, 14/23"
Тип: Арендный бизнес, Офисы
Площадь: 107.70 м2
Отделка:отделка арендатора
Арендатор: Фотостудия, Ателье, Пилатес
Месячный платеж: 290 000
44 803 200 за все
416 000 за м2
Позвонить Подробнее

Доходность 8.16 %

Смоленская (Филевская) Смоленская (Арбатско-Покровская) (10 мин. 🚶)
Закрытая продажа #57817
Тип: Арендный бизнес, Торговое помещение
Площадь: 104.20 м2
Мощность:20 кВт
Арендатор: OFF LABEL CLINIC - косметический салон, магазин профессиональной уходовой косметики
Месячный платеж: 770 000
150 000 000 за все
1 439 539 за м2
Позвонить Подробнее

Доходность 10.53 %

Смоленская (Филевская) Смоленская (Арбатско-Покровская) (3 мин. 🚶)
Москва, улица Арбат, 51с1
Жилое здание "Арбат, 51с1"
Тип: Арендный бизнес, Торговое помещение
Площадь: 139.10 м2
Арендатор: Отель
Месячный платеж: 380 000
43 190 000 за все
310 496 за м2
Позвонить Подробнее